NIB1024

Projet de construction d’une maison d’habitation individuelle –

Quartier Pereire, Arcachon (33 120)

 

Mission complète

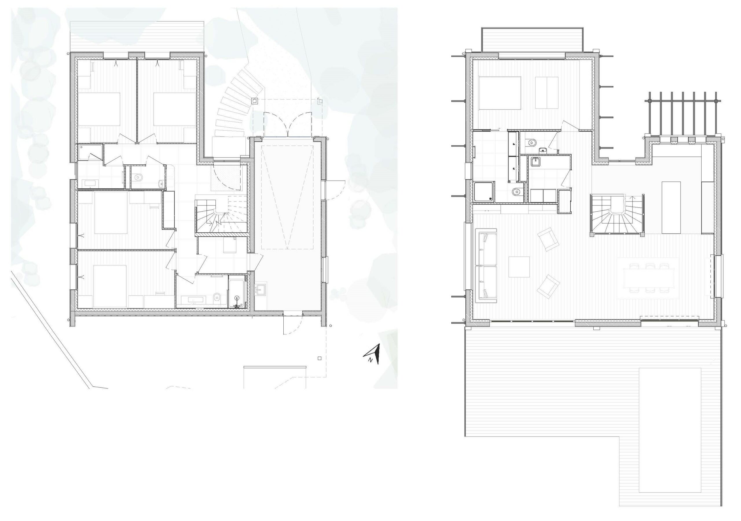
Programme: Une suite parentale, quatre chambres, trois salles de bain, une cuisine ouverte sur salle à manger et séjour

Surface: 190 m²

Date: Etudes en cours